가로수마을휴먼시아아파트 국민임대 36형, 46형, 51형
청주가로수 임대아파트 신청자격은 입주자 모집공고일 현재 무주택 세대 구성원으로서 소득 및 자산 보유기준을 충족한다면 신청할 수 있습니다. 자세한 사항은 LH 충북지역본부 ( ☎ 043-901-4541 ) 문의 또는 모집공고문을 확인하세요. 신청 시 공고 내용을 반드시 숙지하고 신청자격, 소득, 자산 가점항목 등 사전에 본인이 직접 해당 서류 등을 확인하고 신청해야 됩니다. 평면도는 하단에 첨부했습니다. 참고하세요! 계약은 공가 발생 시 당첨 순번으로 계약됩니다. 예비입주자로 선정되어도 실제 아파트 입주에는 많은 기간이 소요될 수 있습니다.



가로수마을휴먼시아아파트
충북 청주시 흥덕구 서현중로32번길 23 (가경동 2077)
place.map.kakao.com
아파트 정보
지역 충북
소재지 충청북도 청주시 흥덕구 서현중로32번길 23
공급구분 국민임대
건설세대수 773
입주개시일 2008년 7월
구조/난방 복도식/지역난방
공급정보
36형 전용면적 36.*㎡ (약 11평)
임대보증금 17,096,000원
월임대료 141,110원
46형 전용면적 46.*㎡ (약 14평)
임대보증금 24,350,000원
월임대료 170,980원
51형 전용면적 51.*㎡ (약 15평)
임대보증금 29,893,000원
월임대료 208,170원
임대보증금 및 월 임대료는 입주자 모집공고일 기준이며, 보증금 최대 전환 시 변동될 수 있습니다. 참고만 해주세요!
국민임대아파트와 공공임대아파트의 차이점은 국민임대주택은 분양전환이 안 되는 아파트로써 최장 30년간 임대로 거주하면서 2년마다 갱신계약을 하며, 보증금과 월 임대료를 납부하고 거주하는 아파트입니다. 반면에 공공임대주택은 분양 전환되는 아파트로써 일정 긴 간(5, 10년)의 임대기간이 끝나면 본인 소유가 되어 전매가 가능한 아파트입니다.
무주택세대 구성원이란? 세대 구성원에 해당하는 사람 전원이 주택을 소유하고 있지 않은 세대의 구성원을 말합니다.
아파트 주변정보
고속,시외버스터미널 청주시외버스터미널
대형마트 홈플러스 청주점
종합병원 하나병원
초등학교 서현초등학교
중학교 경덕중학교, 서현중학교
고등학교 청주외국어고등학교
대학교 충북대학교 개신캠퍼스
공원 발산공원
선정방법
전용면적 50㎡미만주택
1순위 : 충청북도 청주시에 거주하는 자
2순위 : 충청북도 진천군, 보은군, 증평군, 괴산군, 대전시, 세종시, 천안시에 거주하는 자
3순위 : 제1순위 및 제2순위에 해당되지 아니하는 자
선정순서 : 순위 > 배점 > 추첨
* 청약저축 납입회수는 통장 납입 횟수가 아닌 청약 순위 확인서로 봅니다. 그리고 임대주택에 당첨되더라도 다른 분양주택 또는 임대주택을 청약하는데 청약통장을 재사용할 수 있으며, 당첨됐다고 해서 다른 아파트에 청약을 못하는 게 아니니 걱정하지 않아도 됩니다.
위 순위 내에서 경쟁이 있을 경우 배점이 높은 순으로 선정
배점이 같은 경우 추첨으로 선정
전용면적 50㎡이상주택
1순위 : 청약저축에 가입하여 월납입금을 24회이상 납입한 자
2순위 : 청약저축에 가입하여 월납입금을 6회이상 납입한 자
3순위 : 제1순위 및 제2순위에 해당되지 아니하는 자
선정순서 : 순위 > 배점 > 추첨
*청약 납입회수는 통장 납입 횟수가 아닌 청약 순위 확인서로 확인하고 당첨되더라도 다른 분양주택 또는 임대주택을 청약하는데 청약통장을 재사용할 수 있습니다. 계약 체결할 경우 청약통장 재사용이 불가합니다.
위 순위 내에서 경쟁이 있을 경우 배점이 높은 순으로 선정
배점이 같은 경우 추첨으로 선정
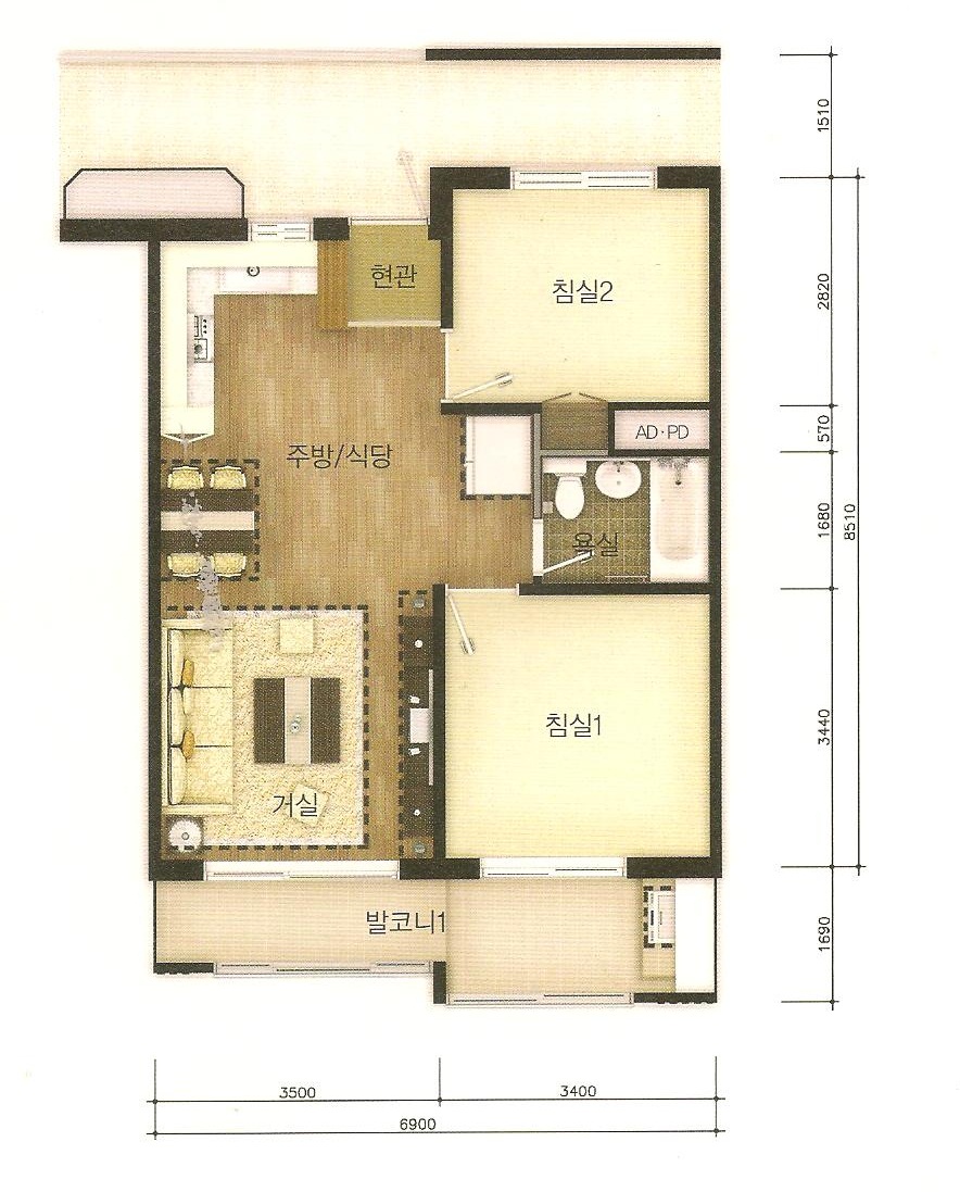
평면도






단지 조감도

단지 동호 배치도


네이버 지도
청주시 흥덕구 가경동
map.naver.com
주택의 평면도 등은 마이홈(https://www.myhome.go.kr)/ 공공주택 찾기(기존 임대주택 찾기)/지도에서 지역 선택/ 국민임대 / 아파트 선택 후 검색하기 한 다음 단지명을 클릭하셔서 확인하실 수 있습니다.
임대주택을 의외로 많은 분들이 모르고 계시더군요. 저도 그중에 하나였고요. 한국 토지주택공사(LH), 지자체, 지방공사에서 무주택 저소득 서민들에게 저렴한 비용으로 주거안정을 누릴 수 있도록 소득 계층별로 다양한 임대주택이 공급되고 있습니다. 조금만 관심을 기울이면 저렴하게 거주할 수 있는 방법이 있습니다.
인터넷 신청방법
1. 공인인증서 준비
2. LH 인터넷청약시스템 접속
3. 인터넷신청
4. 신청완료
> 입주자 모집공고
임대문의
예비입주자순위 조회방법
예비입주자 당첨 명단은 공사 홈페이지((https://apply.lh.or.kr)와 ARS(1661-7700)를 통해 당첨 발표일로부터 30일간 확인할 수 있으며, 당첨 사실을 확인하지 못하여 계약 체결을 못한 경우의 책임은 신청자 본인에게 있습니다.
'충북' 카테고리의 다른 글
| 증평송산1 국민임대주택 33형, 39형, 46형 기본정보 (0) | 2021.03.29 |
|---|---|
| 청주산남2-2 영구임대주택 26형 기보정보 (0) | 2021.02.22 |
| 제천장락4 국민임대주택 36형, 46형 기본정보 (0) | 2020.12.01 |
| 충주연수7 국민임대주택 39형, 45형, 59형 기본정보 (0) | 2020.11.30 |
| 충주연수6 국민임대주택 46형, 59형 기본정보 (1) | 2020.11.30 |