서귀포대정휴먼시아아파트 국민임대 39형, 46형, 47형, 51형
임대아파트 신청자격은 입주자 모집공고일 현재 무주택 세대 구성원으로서 소득 및 자산 보유기준을 충족한다면 신청할 수 있습니다. 자세한 사항은 LH 제주지역본부(주거복지사업부), 또는 모집공고문을 확인하세요. 신청시 공고 내용을 반드시 숙지하고 신청자격, 소득, 자산 가점항목 등 사전에 본인이 직접 해당 서류 등을 확인하고 신청해야 됩니다. 평면도는 하단에 첨부했습니다. 참고하세요! 계약은 공가 발생 시 당첨 순번으로 계약됩니다. 예비입주자로 선정되어도 실제 아파트 입주에는 많은 기간이 소요될 수 있습니다.


아파트 정보
지역 제주도
소재지 제주특별자치도 서귀포시 대정읍 하모중앙로 6
공급구분 국민임대
건설세대수 327
입주개시일 2010년 3월
구조/난방 복도식/개별
공급정보
39형 전용면적 39.63㎡ (약 11평)
임대보증금 10,603,000원
월임대료 81,930원
46형 전용면적 46.8㎡ (약 14평)
임대보증금 13,857,000원
월임대료 118,080원
47형 전용면적 47.41㎡ (약 14평)
임대보증금 13,857,000원
월임대료 118,080원
51형 전용면적 51.93㎡ (약 15평)
임대보증금 17,473,000원
월임대료 138,570원
임대보증금 및 월임대료는 입주자 모집공고일 기준이며, 보증금 최대전환시 변동될 수 있습니다. 참고만 해주세요!
국민임대아파트와 공공임대아파트의 차이점은 국민임대주택은 분양전환이 안되는 아파트로써 최장 30년간 임대로 거주하면서 2년마다 갱신계약을 하며, 보증금과 월임대료를 납부하고 거주하는 아파트입니다. 반면에 공공임대주택은 분양전환되는 아파트로써 일정 긴 간(5, 10년)의 임대기간이 끝나면 본인 소유가 되어 전매가 가능한 아파트입니다.
무주택세대구성원이란? 세대구성원에 해당하는 사람 전원이 주택을 소유하고 있지 않은 세대의 구성원을 말합니다.
선정방법
전용면적 50㎡미만 주택
1순위 : 모집공고일 현재 주소지가 제주특별자치도인 자
2순위 : 제1순위에 해당되지 아니하는 자
선정순서 : 순위 > 배점 > 추첨
* 청약저축 납입회수는 통장 납입횟수가 아닌 청약순위 확인서로 봅니다. 그리고 임대주택에 당첨되더라도 다른 분양주택 또는 임대주택을 청약하는데 청약통장을 재사용할 수 있으며, 당첨됐다고 해서 다른 아파트에 청약을 못하는 게 아니니 걱정하지 않아도 됩니다.
위 순위 내에서 경쟁이 있을 경우 배점이 높은 순으로 선정
배점이 같은 경우 추첨으로 선정
전용면적 50㎡이상주택
1순위 : 청약저축에 가입하여 월납입금을 24회이상 납입한 자
2순위 : 청약저축에 가입하여 월납입금을 6회이상 납입한 자
3순위 : 제1순위 및 제2순위에 해당되지 아니하는 자
선정순서 : 순위 > 배점 > 추첨
*청약 납입회수는 통장 납입횟수가 아닌 청약순위 확인서로 확인하고 당첨되더라도 다른 분양주택 또는 임대주택을 청약하는데 청약통장을 재사용할 수 있습니다. 계약체결 할 경우 청약통장 재사용이 불가합니다.
위 순위 내에서 경쟁이 있을 경우 배점이 높은 순으로 선정
배점이 같은 경우 추첨으로 선정
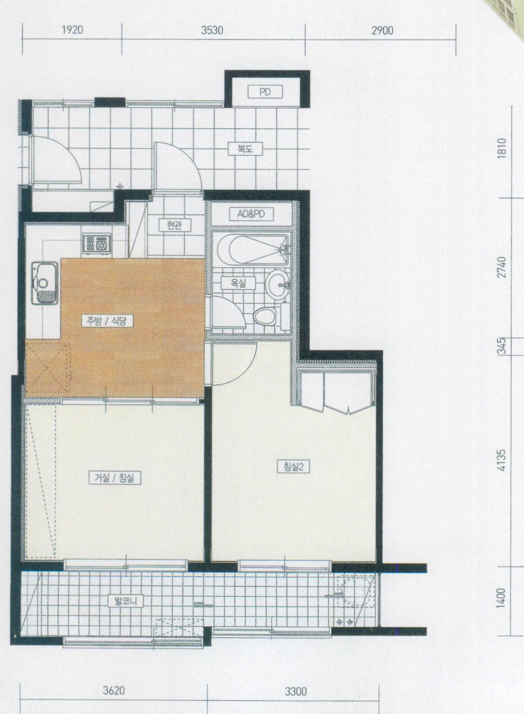
평면도






조감도

단지 배치도

단지 배치도

주택의 평면도등은 마이홈(https://www.myhome.go.kr)/ 공공주택찾기(기존임대주택찾기)/지도에서 지역선택/ 국민임대 / 아파트 선택 후 검색하기 한 다음 단지명을 클릭하셔서 확인하실 수 있습니다.
임대주택을 의외로 많은 분들이 모르고 계시더군요. 저도 그중에 하나였고요. 한국토지주택공사(LH), 지자체, 지방공사에서 무주택 저소득 서민들에게 저렴한 비용으로 주거안정을 누릴 수 있도록 소득 계층별로 다양한 임대주택이 공급되고 있습니다. 조금만 관심을 기울이면 저렴하게 거주할 수 있는 방법이 있습니다.
인터넷 신청방법
1. 공인인증서 준비
2. LH 인터넷청약시스템 접속
3. 인터넷신청
4. 신청완료
> 입주자 모집공고
임대문의
예비입주자순위 조회방법
예비입주자 당첨 명단은 공사 홈페이지((https://apply.lh.or.kr)와 ARS(1661-7700)를 통해 당첨 발표일로부터 30일간 확인할 수 있으며, 당첨 사실을 확인하지 못하여 계약 체결을 못한 경우의 책임은 신청자 본인에게 있습니다.
'제주' 카테고리의 다른 글
| 제주봉개 국민임대주택 29형, 46형 (1) | 2020.04.24 |
|---|---|
| 제주도련 국민임대주택 39형, 46형 (1) | 2020.04.23 |
| 서귀포남원 국민임대주택 26형, 36형, 46형 (0) | 2020.04.21 |
| 귀덕이강 국민임대주택 39형 (0) | 2020.04.20 |
| 고내이강 국민임대주택 29형, 39형 (0) | 2020.04.19 |