충주신한강변아파트 국민임대 24형, 26형, 36형, 37형, 42형, 43형 기본정보
충주신한강변 임대아파트 신청자격은 입주자 모집공고일 현재 무주택 세대 구성원으로서 소득 및 자산 보유기준을 충족한다면 신청할 수 있습니다. 자세한 사항은 충주신한강변주거행복지원센터 ( ☎ 043-855-4667 ) 문의 또는 모집공고문을 확인하세요. 신청 시 공고 내용을 반드시 숙지하고 신청자격, 소득, 자산 가점항목 등 사전에 본인이 직접 해당 서류 등을 확인하고 신청해야 됩니다. 평면도는 하단에 첨부했습니다. 참고하세요! 계약은 공가 발생 시 당첨 순번으로 계약됩니다. 예비입주자로 선정되어도 실제 아파트 입주에는 많은 기간이 소요될 수 있습니다.


아파트 정보
지역 충북
소재지 충청북도 충주시 풍동동막길 50
공급구분 국민임대
건설세대수 92
최초입주 1994년 5월
구조/난방 계단식/개별가스난방
공급정보
24형 전용면적 24.*㎡ (약 7평)
임대보증금 4,538,000원
월임대료 51,850원
26형 전용면적 26.*㎡ (약 7평)
임대보증금 5,185,000원
월임대료 57,050원
36형 전용면적 36.*㎡ (약 10평)
임대보증금 7,779,000원
월임대료 70,020원
37형 전용면적 37.*㎡ (약 11평)
임대보증금 8,428,000원
월임대료 73,890원
42형 전용면적 42.*㎡ (약 12평)
임대보증금 11,022,000원
월임대료 88,170원
43형 전용면적 43.*㎡ (약 13평)
임대보증금 11,670,000원
월임대료 95,960원

임대보증금 및 월 임대료는 입주자 모집공고일 기준이며, 보증금 최대 전환 시 변동될 수 있습니다. 참고만 해주세요!
국민임대아파트와 공공임대아파트의 차이점은 국민임대주택은 분양전환이 안 되는 아파트로써 최장 30년간 임대로 거주하면서 2년마다 갱신계약을 하며, 보증금과 월 임대료를 납부하고 거주하는 아파트입니다. 반면에 공공임대주택은 분양 전환되는 아파트로써 일정 긴 간(5, 10년)의 임대기간이 끝나면 본인 소유가 되어 전매가 가능한 아파트입니다.
무주택세대 구성원이란? 세대 구성원에 해당하는 사람 전원이 주택을 소유하고 있지 않은 세대의 구성원을 말합니다.
선정방법
*모집공고문 참조
* 청약저축 납입회수는 통장 납입 횟수가 아닌 청약 순위 확인서로 봅니다. 그리고 임대주택에 당첨되더라도 다른 분양주택 또는 임대주택을 청약하는데 청약통장을 재사용할 수 있으며, 당첨됐다고 해서 다른 아파트에 청약을 못하는 게 아니니 걱정하지 않아도 됩니다.
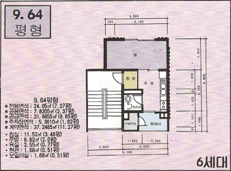
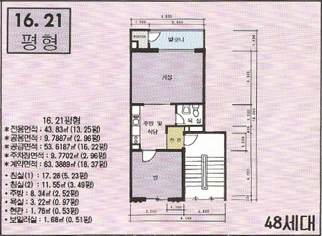
평면도






단지 조감도

단지 동호 배치도

주택의 평면도 등은 마이홈(https://www.myhome.go.kr)/ 공공주택 찾기(기존 임대주택 찾기)/지도에서 지역 선택/ 국민임대 / 아파트 선택 후 검색하기 한 다음 단지명을 클릭하셔서 확인하실 수 있습니다.
임대주택을 의외로 많은 분들이 모르고 계시더군요. 저도 그중에 하나였고요. 한국 토지주택공사(LH), 지자체, 지방공사에서 무주택 저소득 서민들에게 저렴한 비용으로 주거안정을 누릴 수 있도록 소득 계층별로 다양한 임대주택이 공급되고 있습니다. 조금만 관심을 기울이면 저렴하게 거주할 수 있는 방법이 있습니다.
인터넷 신청방법
1. 공인인증서 준비
2. LH 인터넷청약시스템 접속
3. 인터넷신청
4. 신청완료
> 입주자 모집공고
임대문의
예비입주자순위 조회방법
예비입주자 당첨 명단은 공사 홈페이지((https://apply.lh.or.kr)와 ARS(1661-7700)를 통해 당첨 발표일로부터 30일간 확인할 수 있으며, 당첨 사실을 확인하지 못하여 계약 체결을 못한 경우의 책임은 신청자 본인에게 있습니다.
'충북' 카테고리의 다른 글
| 진천덕산 국민임대주택 39형, 46형, 59형 기본정보 (0) | 2025.01.07 |
|---|---|
| 진천신정 국민임대주택 39형, 46형, 59형 기본정보 (0) | 2024.07.27 |
| 청주동남1 국민임대주택 26형, 37형, 46형 기본정보 (0) | 2023.05.25 |
| 청주율량1 국민임대주택 36형, 46형 기본정보 (0) | 2023.05.24 |
| 영동가마실1 국민임대주택 36형, 46형 기본정보 (1) | 2023.05.19 |